19112 Hanley Boulevard $697,000

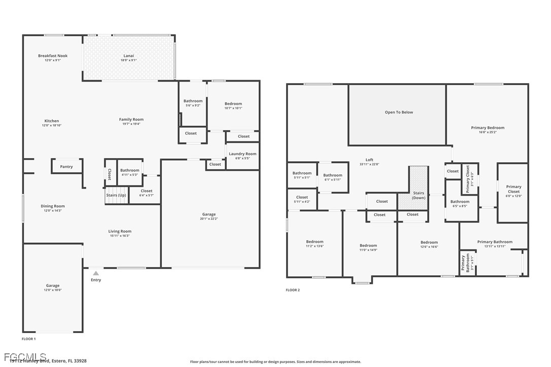
Welcome to this move in ready 5 bedroom and 4.5 bathroom home located in the highly sought after community of Verdana Village. This light and bright, two-story lakefront offers a fenced-in yard and SW exposure for some of the best sunsets SWFL offers. The main level of this home offers so much versatility with the amount of multi-functional space. Kitchen has upgraded gas appliances, eat in kitchen that overlooks the lake, oversized pantry and pass through to the formal dining area. First floor ensuite is perfect for guests or multi generational living. Under stair storage and laundry on the first level. Upstairs offers a spacious loft and the other four bedrooms. The oversized primary suite overlooks the lake and features a huge walk-in closet, dual vanities, a private toilet room and large shower. There's room for a pool and plans are available! As a resident of Verdana Village, you'll get to enjoy a resort style pool and spa, full fitness center, yoga room and lawn, indoor and outdoor pickleball and tennis courts, basketball, dog park, playground, restaurant, craft beer lounge and cafe. This golf cart-friendly allows you to ride to the amenity center or just outside the gates to The Shoppes at Verdana Village, where you'll find Publix and more. All of this and you are only a short drive to I-75, Miromar Outlets, RSW Intl Airport and much more! Estero is centrally located between Naples and Fort Myers so the opportunities for shopping, dining and the beaches are at your fingertips!
General Amenities
Interior Amenities
Exterior Amenities
Landscape Amenities
Community Amenities
Appliance Amenities
Accessibility Amenities
Beds
5
Baths
5.00
Ft2
3,357
Lot Acres
0.23
Year Built
2025
Heat
Central,Electric
Roof
Tile
Virtual Tour
19112 Hanley Boulevard
Estero, Florida 33928
United States
Subdivision: VERDANA VILLAGE
County: Lee
Sale Type: For Sale
Ref #: 2025019997
Category: Single Family
Listed by RE/MAX Nautical Realty
Beds
5
Baths
5.00
Ft2
3,357
Lot Acres
0.23
Heat
Central,Electric
Cooling
CentralAir,Electric
Roof
Tile
Year Built
2025
Garage Size
3
Frontage
Yes
HOA
Yes
Beds
5
Baths
5.00
Ft2
3,357
Lot Acres
0.23
Year Built
2025
Heat
Central,Electric
Roof
Tile
Virtual Tour
19112 Hanley Boulevard
Estero, Florida 33928
United States
Subdivision: VERDANA VILLAGE
County: Lee
Sale Type: For Sale
Ref #: 2025019997
Category: Single Family
Listed by RE/MAX Nautical Realty